The 60,5 m² apartment on the 4th floor in an historic building in the center of Berlin was originally bought as an investment and rented. After the last tenant moved out the owners consulted me with the wish to create a recreational, modern space for the couple and their two teenage daughters, as a home away from home when they visit Berlin.
The original layout had been already modified in the early 90s, before the current owners. Driven by commercial interests, at that time, the floor plans had already gotten modified to fit 2 apartments on each floor, a compromise visible in the outcome. The structure followed traditional ideas, including a kitchen with door. The entrance area felt tight and unwelcoming, doors and windows were positioned at random places, the bathroom with a bathtub felt outdated.
My approach was both balancing the charm of an older structure with the needs of a contemporary lifestyle.
Here are a few key observations and elements that highlight the renovation process and the final layout:
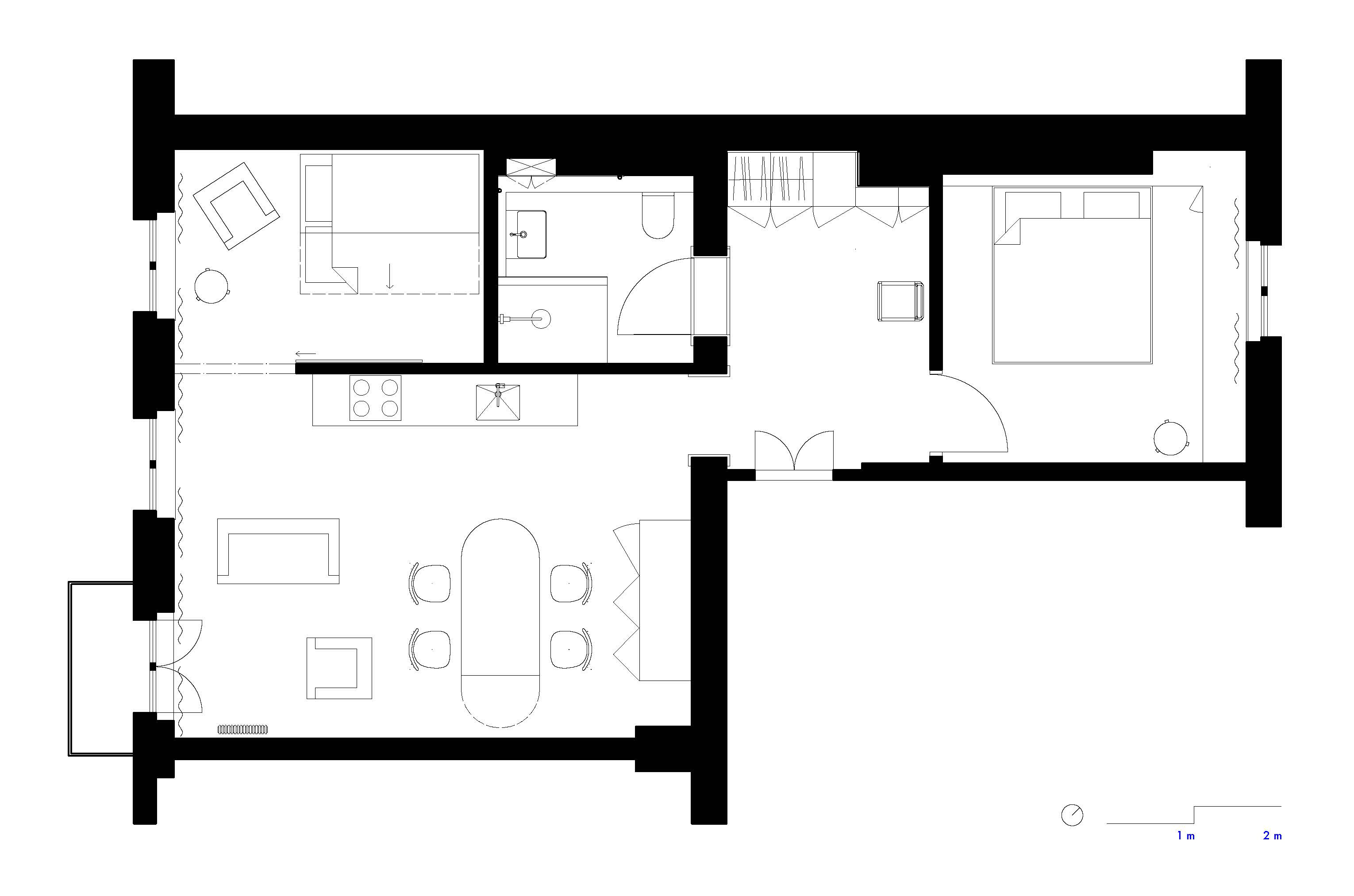
Clarifying axes and flow: I aligned windows and doors along a north-to-south axis to allow for a better natural light flow and sense of openness while maximizing the views and spatial connections.
Entrance area re-imagined: Expanding the entrance area with built-in cabinets addresses the previous sense of tightness and unwelcoming atmosphere. This design choice not only makes the space more functional but also helps to blend the structural irregularities (like wall nosings) into the design, creating a cleaner aesthetic right from the entry.
Master bedroom adjustment: To be able to give the entrance a bigger footprint I reduced the size of the master bedroom. An L-shaped built-in-piece keeps it yet multifunctional, balancing space optimization, functionality and privacy. A desks runs along the exterior window, turning into a king size bed frame.
Open plan living room and kitchen: I combined living room, kitchen, and dining area into one open module. The modular design allows flexibility, and the layout encourages a more fluid interaction between these key spaces, perfect for a family on holiday who might want to spend time together. The glass door to the small balcony even extends the space to the exterior and city, with a view on the Alex TV tower.
Second bedroom transformation: The old kitchen space got transformed into the second bedroom. A section of the wall perpendicular to the exterior wall got removed and replaced by a large sliding door. Through the removal the window front gives the both rooms an abundance of natural light, creating a bright and airy atmosphere. The flexibility of an extendable bed also makes the room adaptable, depending on the number of guests.
Bathroom: Maximizing the bathroom, we decided to only built in a shower, yet spacious. The heated floor is covered with natural stone tiles, the tiled walls throughout the bathroom are in a light tone. A black shower pipe and faucet stand in contrast to the earth tones. A mirror runs along the walls, partially with push open doors and hidden cabinet while maintaining a continuous line.
Surface rework and reuse: All walls are spackled and painted in an off white. The existing flooring got reworked, and new planks in various width got added where originally the tiled kitchen floor was.
All window frames received the maintenance they so badly needed before they got painted white to tie the apartment to its urban surrounding, enhancing airiness and light flow.